


物件の特徴
- 境界トラブルの心配なし「境界確定済み」
- 陽光あふれる住まい「南東道路接道」
- 理想のプランを実現「建築条件なし」
- 土地上に古屋あり。現況のままお引渡しとなります。
物件概要
物件名 | 志木市柏町5丁目売土地 |
物件価格 | 1,100万円 |
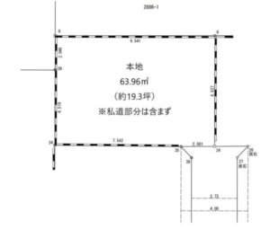
土地面積(公簿) | 63.96㎡(約19.3坪) |
土地権利 | 所有権 |
都市計画 | 市街化区域 |
用途地域 | 第一種中高層住居専用地域 |
建ぺい率/容積率 | 60%/200% |
接道 | 南東側4m私道に2mに面す(協定道路) |
交通 | 東武東上線「志木」駅 徒歩13分 |
その他 | 高度地区(25m) 接面道路は協定道路のため、再建築には建築審査会の許可が必要 |
取引態様 | 媒介 |
情報公開日 | 2025年8月7日 |
周辺施設
- スーパー ヤオコー志木本町店:徒歩6分(411m)
- コンビニ ローソン志木柏町店:徒歩5分(334m)
- ドラッグストア サンドラッグ志木店:徒歩7分(554m)
- 中学校 志木市立志木第二中学校:徒歩11分(880m)
- 小学校 志木市立志木第二小学校:徒歩12分(883m)
- 幼稚園・保育園 第一すぎのこ保育園:徒歩12分(900m)
お知らせ
トレファク不動産では志木市の売却依頼を募集中です。家具や家電などそのままの状態でも問題ありません。
売却に向けて最適なプランをご提案いたします。
トレファクグループの強みを活かし、不用品買取のみではなく、お引越し、家財整理、不動産売却まで総合的にサポート。
専任のスタッフが親切丁寧にサポートします。